• Exclusivité
  • Appartement
  • Vente

LYON SAINT GEORGES – STUDIO A RENOVER

Lyon
135 000€

Description

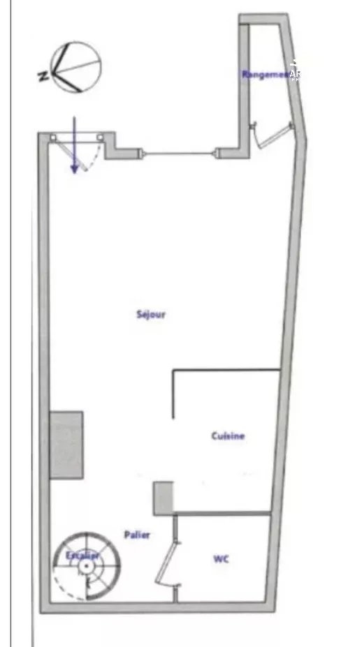
En exclusivité ARIANE IMMOBILIER. Idéal investisseur ou primo accédant : Venez découvrir ce charmant studio de 30 m2, au calme, à rénover situé au 2ème étage, côté cours, au calme. A proximité des quais de Saône et du Métro Vieux-Lyon, vous serez séduit par le cadre de vie, le secteur historique et culturel, les commerces, transports en commun ... Pas de procédure en cours. Prix : 137 000EUR Frais d'agence inclus à la charge du vendeur DPE : E
Pour une visite, Caroline GENEVOIS 06 98 18 38 32 Les informations sur les risques auxquels ce bien est exposé sont disponibles sur le site Géorisques : www. georisques.gouv.fr

Informations importantes

  • Surface 30 m²
  • Prix 135 000€

Détails

  • Référence 84766537
  • Numéro d'étages 2
  • Chauffage Radiateur
  • Prix 135 000€
  • Prix hors honoraires 135 000€
  • Pourcentage honoraires 0.00%
  • Frais honoraires Vendeur
  • Copropriété Oui
  • Nombre de lots 8

Les plus

Diagnostic énergétique du bien

DPE GES
ARIANE IMMOBILIER

ARIANE IMMOBILIER

0478878878

Annonces similaires